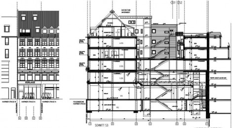
Ladenlokal München

Ladenlokal München

Projekt: verchiedene Projekte (Ladenumbauten / Aufstockung
Verwaltungsgebäude / Brandschutzsanierungen)

Zeitraum: 2005 – 2009

Leistungen: Werkplanung
Auftraggeber: AB Schwankner, Pullach

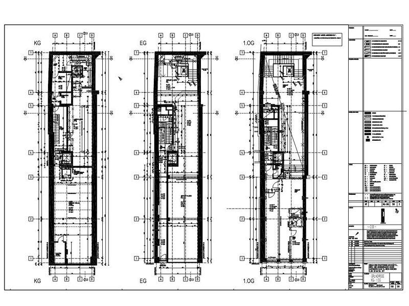
kauf_2 Kauf_1 kaufinger_1