Verwaltungsgebäude Memmingen

Verwaltungsgebäude Memmingen

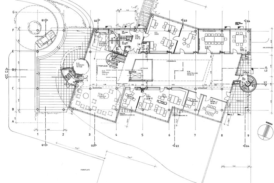
Projekt: Neubau Verwaltungsgebäude Fa.Kolb, Memmingen

Zeitraum: 1990 – 1991

Leistungen: Mitarbeit bei Entwurfs- u. Eingabeplanung,
Entwicklung des Fassadensystems mit Fa. Gartner,
jeweils in freier Mitarbeit für Architekturbüro Eiffler, München

Kolb4-1kolb1-1IMG0064Kolb3-1IMG0058