Dipl.Ing. Robert Bindl
Architekt
Josephinenstr. 16
81479 München
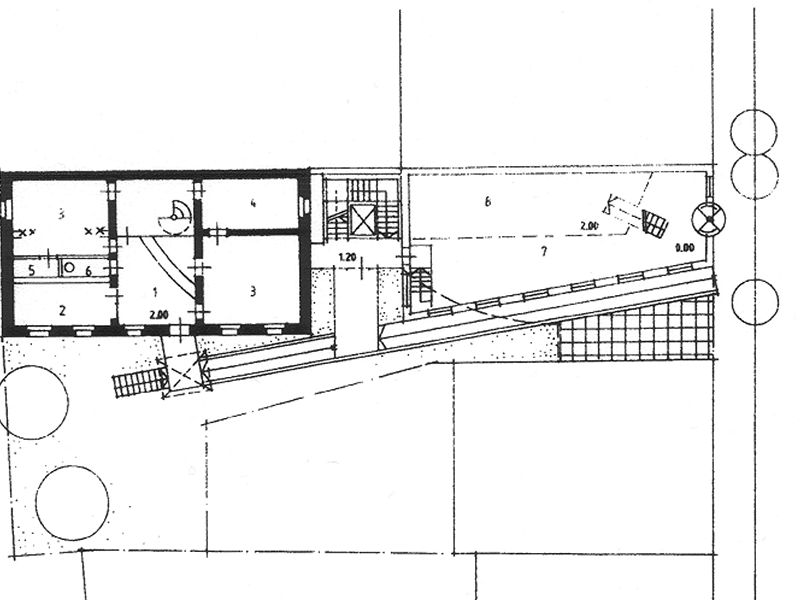
Wohnen
"Überall ist der Architekt nur noch ein Techniker. Er schafft es, eine Genehmigung zu kriegen, dann gibt er das Projekt ab. ... Ich bedauere das sehr, denn es ist wesentlich, dass der Architekt bis zum Ende dabeibleibt. Modelle und Skizzen ersetzen nicht die Kontrolle auf der Baustelle. Dort ändere ich, entscheide also noch. Wenn die Verbindung vom Architekten zum Handwerker, der dies ausführt, beschnitten wird, ist es eine Katastrophe."
Álvaro Siza, *1933 Matosinhos, Portugal
Quelle
Home / 1983 / März / Verschiedene Einfamilienhäuser